- Главная
- Недвижимость
- 3-комнатный дом, 112.31м²
Вернуться к выбору


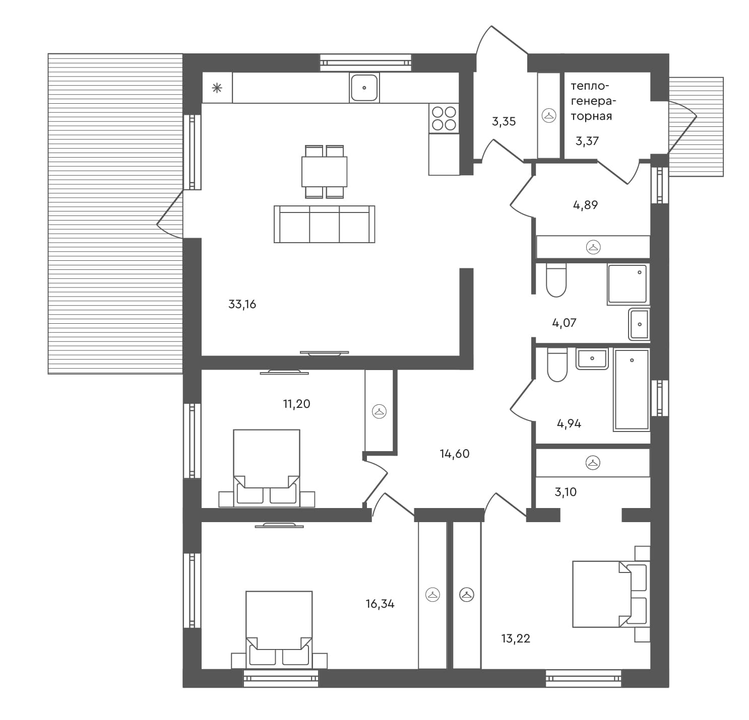
3-комнатный дом, 112.31 м²
13 670 000 ₽
Терраса
Проект:
Ритмы
Корпус:
ИЖС, Этап 4
Секция:
ИЖС
Этаж:
1 из 1
Квартира:
№ 64
Срок сдачи:
I кв. 2026 года
Тип отделки:
Черновая
Следить за изменением цены
Сообщим, когда цена изменится
Способы покупки
КОНСУЛЬТАЦИЯ ОНЛАЙН
Просто заполните форму и наш менеджер свяжется с вами выбранным способом.


Особенности ИЖС
Похожие дома











